北京
武汉
郑州
18301685476
首页
写字楼出租
写字楼出售
联合办公
产业园
关于我们
写字楼出租
写字楼出售
联合办公
产业园
首页
-
写字楼出租
财源国际中心/IFC 精装修遗留整层 1718㎡
朝阳 · CBD / 北京 朝阳 永安里 · 地铁1号线17号线永安里100米
41.8
万元/月
(8元/m
2
·天)
朝阳 · CBD
「地铁1号线17号线永安里站」
地铁1号线17号线永安里100米
于志超
地产专属顾问
18301685476
微信扫内容直接拨打
基本情况
收费标准
房源图片
所属项目
更多房源
基本情况
财源国际中心 ifc
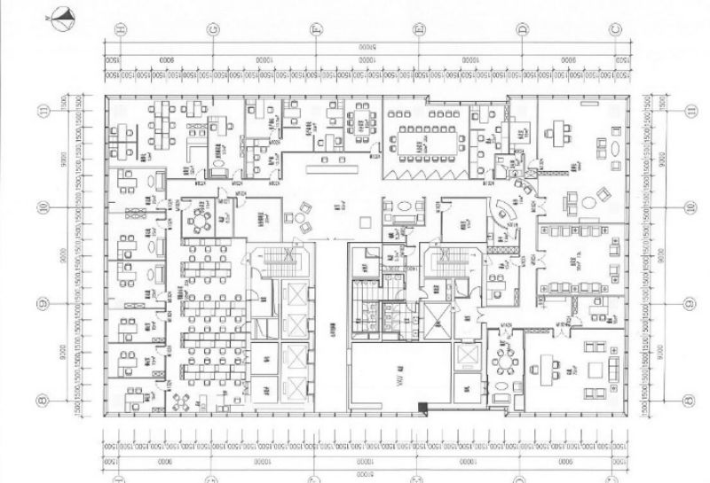
小整层1718平米,精装遗留,可直接使用
地铁1号线17号线永安里站(地铁17号线年底开通)
收费标准
超甲级纯写字楼
商业配套充足
空调可加时
车位充足
房源图片
所属项目
财源国际中心/IFC
朝阳 · CBD / 北京朝阳区国贸站 · 地铁1号线17号线永安里站100米
6—9
元/m ·天
于志超
地产专属顾问
立即咨询
更多房源
中建财富国际中心
亚奥商圈
8—10/m ·天
环球贸易中心
亚奥商圈
6—9/m ·天
天圆祥泰
亚奥商圈
7—9/m ·天